Строительство домов из сип панелй МО

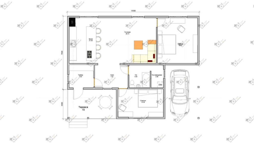
Проект дома « Нортон»

Комплектации

Лайт
2 118 000
  • Фундамент:

    Ж.Б. сваи
    С 30.15 150мм х 150мм х 3000мм
  • Обвязка фундамента:

    Брус 150мм х 150мм
    Обработан огне-биозащитой
  • Нулевое перекрытие:
    (Пол 1-го этажа)


    Сип-панель 174мм
    утеплитель 150мм
  • Наружные стены 1-го этажа:

    Сип-панель 174мм
    Высотой 2500мм
  • Перегородки 1-го этажа:

    Перегородки- каркас
    Несущие доски 50мм х 150мм
    Без обшивки
  • Межэтажное перекрытие:

    Балки 50мм х 200мм с устройством
    пола из OSB - 22мм утеплённый контур пенополистирол
  • Наружные стены 2-го этажа:

    Сип-панель 174мм
    Высотой 2500мм
  • Перегородки 2-го этажа:

    Перегородки- каркас
    Несущие доски 50мм х 150мм
    Без обшивки
  • Чердачное перекрытие:

    Балки 50мм х 150мм
    С утеплением Минеральной ваты
    "Технониколь" толщина 150мм
  • Кровля и обрешётка крыши:

    Металлочерепица
    толщина стали 0,5мм
  • Окна :

    ПВХ 2-х камерный стеклопакет
Стандартная
2 223 600
  • Фундамент:

    Ж.Б. сваи
    С 30.15 150мм х 150мм х 3000мм
  • Обвязка фундамента:

    Брус 200мм х 200мм
    Обработан огне-биозащитой
  • Нулевое перекрытие:
    (Пол 1-го этажа)


    Сип-панель 224мм
    утеплитель 200мм
  • Наружные стены 1-го этажа:

    Сип-панель 174мм
    Высотой 2800мм
  • Перегородки 1-го этажа:

    Перегородки- каркас
    Доски 50мм х 150мм
    Без обшивки
  • Межэтажное перекрытие:

    Сип-панель 174мм
    утеплитель 150мм
  • Наружные стены 2-го этажа:

    Сип-панель 174мм
    Высотой 2500мм
  • Перегородки 2-го этажа:

    Перегородки- каркас
    Доски 50мм х 150мм
    Без обшивки
  • Чердачное перекрытие:

    Сип-панель 174мм

    утеплитель 150мм
  • Кровля и обрешётка крыши:

    Металлочерепица
    толщина стали 0,5мм
  • Окна :

    ПВХ 2-х камерный стеклопакет
Премиум
2 312 000
  • Фундамент:

    Ж.Б. сваи
    С 30.15 150мм х 150мм х 3000мм
  • Обвязка фундамента:

    Брус 200мм х 200мм
    Обработан огне-биозащитой
  • Нулевое перекрытие:
    (Пол 1-го этажа)


    Сип-панель 224мм
    утеплитель 200мм
  • Наружные стены 1-го этажа:

    Сип-панель 174мм
    Высотой 2800мм
  • Перегородки 1-го этажа:

    Сип-панель 124мм

    утеплитель 100мм
  • Межэтажное перекрытие:

    Сип-панель 174мм
    утеплитель 150мм
  • Наружные стены 2-го этажа:

    Сип-панель 174мм
    Высотой 2500мм
  • Перегородки 2-го этажа:

    Сип-панель 124мм

    утеплитель 100мм
  • Чердачное перекрытие:

    Сип-панель 174мм

    утеплитель 150мм
  • Кровля и обрешётка крыши:

    Металлочерепица
    толщина стали 0,5мм
  • Окна :

    ПВХ 2-х камерный стеклопакет
Популярный