Меню
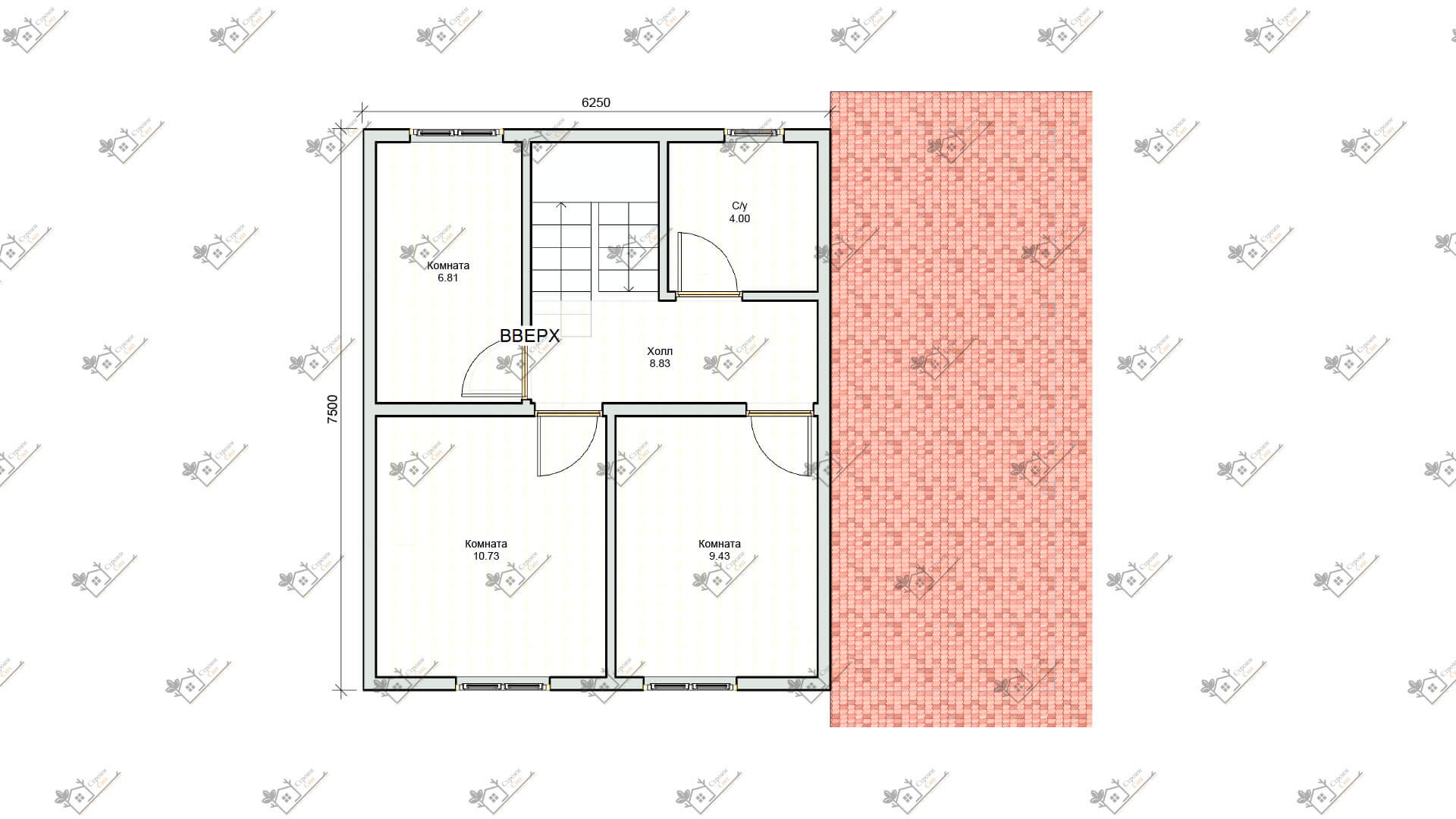
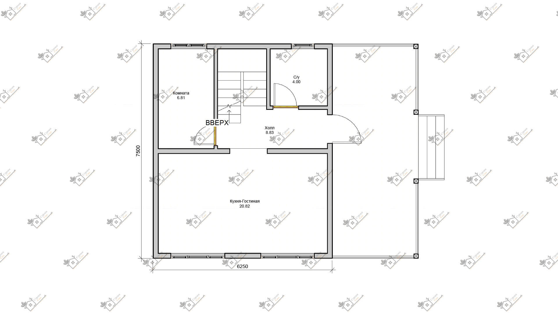
Проект дома «Лоа»





- 94м²
- 7,5х6,25м
- 4 спальни
- 2 с/у
- 1 320 750
Комплектации
Лайт
1 320 750
₽
-
Фундамент:
Ж.Б. сваи
С 30.15 150мм х 150мм х 3000мм -
Обвязка фундамента:
Брус 150мм х 150мм
Обработан огне-биозащитой -
Нулевое перекрытие:
(Пол 1-го этажа)
Сип-панель 174мм
утеплитель 150мм -
Наружные стены 1-го этажа:
Сип-панель 174мм
Высотой 2500мм -
Перегородки 1-го этажа:
Перегородки- каркас
Несущие доски 50мм х 150мм
Без обшивки -
Межэтажное перекрытие:
Балки 50мм х 200мм с устройством
пола из OSB - 22мм утеплённый контур пенополистирол -
Наружные стены 2-го этажа:
Сип-панель 174мм
Высотой 2500мм -
Перегородки 2-го этажа:
Перегородки- каркас
Несущие доски 50мм х 150мм
Без обшивки
-
Чердачное перекрытие:
Балки 50мм х 150мм
С утеплением Минеральной ваты
"Технониколь" толщина 150мм -
Кровля и обрешётка крыши:
Металлочерепица
толщина стали 0,5мм
Стандартная
1 477 280
₽
-
Фундамент:
Ж.Б. сваи
С 30.15 150мм х 150мм х 3000мм -
Обвязка фундамента:
Брус 200мм х 200мм
Обработан огне-биозащитой -
Нулевое перекрытие:
(Пол 1-го этажа)
Сип-панель 224мм
утеплитель 200мм -
Наружные стены 1-го этажа:
Сип-панель 174мм
Высотой 2800мм -
Перегородки 1-го этажа:
Перегородки- каркас
Доски 50мм х 150мм
Без обшивки
-
Межэтажное перекрытие:
Сип-панель 174мм
утеплитель 150мм -
Наружные стены 2-го этажа:
Сип-панель 174мм
Высотой 2500мм -
Перегородки 2-го этажа:
Перегородки- каркас
Доски 50мм х 150мм
Без обшивки -
Чердачное перекрытие:
Сип-панель 174мм
утеплитель 150мм
-
Кровля и обрешётка крыши:
Металлочерепица
толщина стали 0,5мм
Премиум
1 590 270
₽
-
Фундамент:
Ж.Б. сваи
С 30.15 150мм х 150мм х 3000мм
-
Обвязка фундамента:
Брус 200мм х 200мм
Обработан огне-биозащитой -
Нулевое перекрытие:
(Пол 1-го этажа)
Сип-панель 224мм
утеплитель 200мм -
Наружные стены 1-го этажа:
Сип-панель 174мм
Высотой 2800мм -
Перегородки 1-го этажа:
Сип-панель 124мм
утеплитель 100мм -
Межэтажное перекрытие:
Сип-панель 174мм
утеплитель 150мм -
Наружные стены 2-го этажа:
Сип-панель 174мм
Высотой 2500мм -
Перегородки 2-го этажа:
Сип-панель 124мм
утеплитель 100мм -
Чердачное перекрытие:
Сип-панель 174мм
утеплитель 150мм
-
Кровля и обрешётка крыши:
Металлочерепица
толщина стали 0,5мм
Популярный